About us
The Team
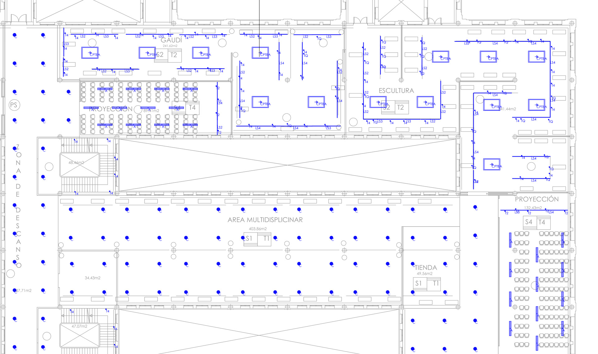
Lighting Design
3D Visualization Services
onlight VR
News & Blog
Contact us
Home
CAD
← Previous
Next →